Truco de programación de Fikus
Cómo ocultar elementos de la geometría actual
A veces tenemos necesidad de simplicar el modelo geométrico en pantalla y queremos ocultar ciertos elementos sin perderlos para poder recuperarlos cuando lo necesitamos. Pongamos por ejemplo las cotas, que no siempre queremos tener visibles o, en torno, puede sernos útil ocultar media pieza y quedarnos sólo con la geometría necesaria en el CAM.

Para ocultar elementos de la geometría de fikus podemos realizarlo de dos modos:
1. El primer método seria seleccionando los elementos a ocultar y pulsar el icono ocultar/mostrar.
![]()
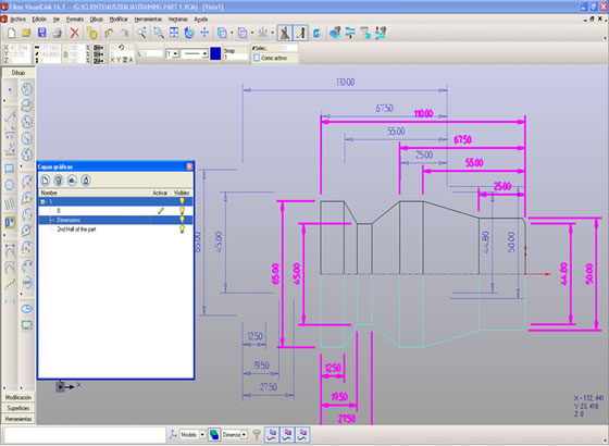
2. El segundo método es generando una nueva capa y moviendo los elementos a ella.
![]()
El primer método es directo. Hacemos click sobre el botón "Ocultar", seleccionamos la geometría a ocultar y aceptamos con la tecla "Enter".
Para Desocultar la geometría, volvemos a hacer click sobre el botón "Ocultar" y entonces nos aparece la geometría oculta en otro color junto a la ya la visible. Para desocultar, mantendremos pulsada la barra espaciadora (tecla "Espacio") del teclado y seleccionaremos con el ratón la geometría a volver a mostrar.
Para utilizar las capas, pulsaremos sobre el icono de capas de la barra inferior de fikus y se abrirá la ventana de capas. Pulsaremos el icono de "Nueva Capa" y nos situaremos sobre ella. Si lo deseamos laepodemos cambiar el nombre. Seleccionaremos la geometría a desplazar, y con esta "pinchada" la arrastraremos sobre la nueva capa creada.

Una vez copiado, le cambiaremos el tipo para que sea un "punzón check".
Otra opción más rápida para crear una capa nueva a la vez que movemos la geometría consiste en seleccionar y arrastrar la geometría directamente sobre una zona en blanco de la ventana de capas.


